成功案例
公司总机: 19924719091;19924739885
咨询邮箱:gzblep@163.com ; huang.xy@gzblep.com
公司地址:广东省广州市黄埔区黄埔大道东881号

集装式一体化净水器
2017-06-09 01:43
广州碧蓝环保科技有限公司
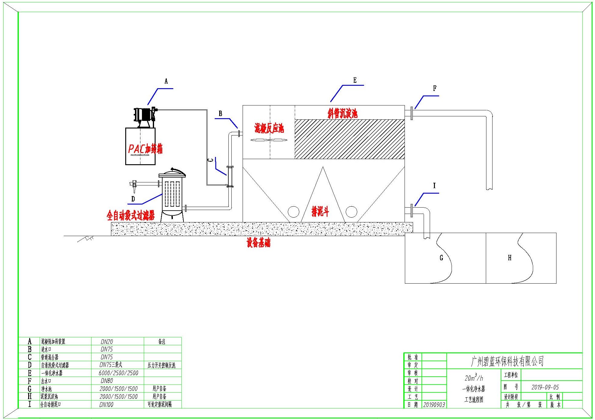
处理水量:20吨/时、10~100吨/时(具体可定做)
处理水量:20吨/时、10~100吨/时(具体可定做)
适用水源:工地污水、冲洗废水、河水净化、雨水回收
设计工艺:收集池+混凝加药+斜管沉淀+砂滤+设备间+排泥沉淀池

备注:不含现场土建施工吊装部分,不含设备以外厂区内整体管道管网布局,交付设备图纸PLC程序。
付款方式:到货支付50%,验收付至95,5%质保金1年质保期满付清。
有效期限:此报价单30天内有效。
设计工艺:收集池+混凝加药+斜管沉淀+砂滤+设备间+排泥沉淀池
| 序号 | 名称 | 规格型号 | 数量 | 单位 | 备注 |
| 一 | 设备主体(Q235碳钢材质,地上式,集装箱式外形尺寸8*2*2.5米) | ||||
|
1.进水 提升(集装箱外) |
潜水提升泵 | 流量Q=30m³/h,扬程H=15m,功率N=1.5kw | 2 | 台 | 上海人民 |
| 液位控制 | 高低液位自控 | 1 | 套 | 国产优质 | |
| 2.絮凝反应区 | 管道混合器 | DN80 | 1 | 套 | 本公司 |
| 反应架桥 | 配套 | 1 | 套 | 本公司 | |
| 溢流堰 | 齿形 | 1 | 套 | 本公司 | |
|
3.斜管沉淀区 |
斜板填料 | PP材质 | 1 | 套 | 本公司 |
| 填料支架 | 配套 | 1 | 台 | 本公司 | |
| 溢流堰 | 齿形 | 1 | 套 | 本公司 | |
| 排泥阀 | 配套,电动,DN100 | 1 | 台 | 本公司 | |
| 4.设备间 | 管道泵 | 流量Q=30m³/h,扬程H=15m,功率N=1.5kw | 1 | 台 | 上海人民 |
| 石英砂过滤器 | 玻璃钢或碳钢材质,φ1500*2400 | 1 | 套 | 本公司 | |
| 管道泵 | 流量Q=40m³/h,扬程H=25m,功率N=3kw | 1 | 台 | 上海人民 | |
| 电控柜 | PLC带触摸屏,全自动一体,三相四线电 | 1 | 套 | 国产优质 | |
| 加药装置 | 500升PP箱,热风焊 | 1 | 套 | 本公司 | |
| 搅拌机 | 水下搅拌,三叶搅拌桨,0.37kw | 1 | 套 | 本公司 | |
| 加药泵 | 机械隔膜泵,0-63L/h | 1 | 套 | 上海人民 | |
| 加药管路 | 配套 | 1 | 套 | 本公司 | |
| 背压阀 | 配套 | 1 | 套 | 本公司 | |
| 二 | 配套附件及全自动控制系统 | ||||
| 1 | 电线电缆 | 系统配套 | 1 | 套 | 国产优质 |
| 2 | 管件阀门 | 系统配套 | 1 | 套 | 华亚 |
| 3 | 外部爬梯 | 纵向攀爬式 | 1 | 套 | 本公司 |
| 4 | 外部加固 | 系统配套 | 1 | 套 | 本公司 |
| 5 | 吸顶灯 | LED,18W | 1 | 套 | 国产优质 |
| 6 | 门 | 集装箱配套 | 1 | 扇 | 国产优质 |
| 7 | 排气扇 | 集装箱配套 | 1 | 个 | 国产优质 |
| 小计 | **万元 | ||||
| 运费 | 运至广东**万元 | ||||
| 税费(13%) | 运至广东**万元 | ||||
| 合计 | **万元 | ||||

备注:不含现场土建施工吊装部分,不含设备以外厂区内整体管道管网布局,交付设备图纸PLC程序。
付款方式:到货支付50%,验收付至95,5%质保金1年质保期满付清。
有效期限:此报价单30天内有效。




